G98 Visualisierung Aussen Erschliessung Fusswege

2018 | Wohnen

ÜB Sankt Martinsgarten | Olten

Impressionen
Pläne
Kenndaten
G98 Visualisierung Aussen Kirche
G98 Visualisierung Innen Wohnen Frontal
G98 Visualisierung Innen Wohnen
G98 HP Schwarzplan
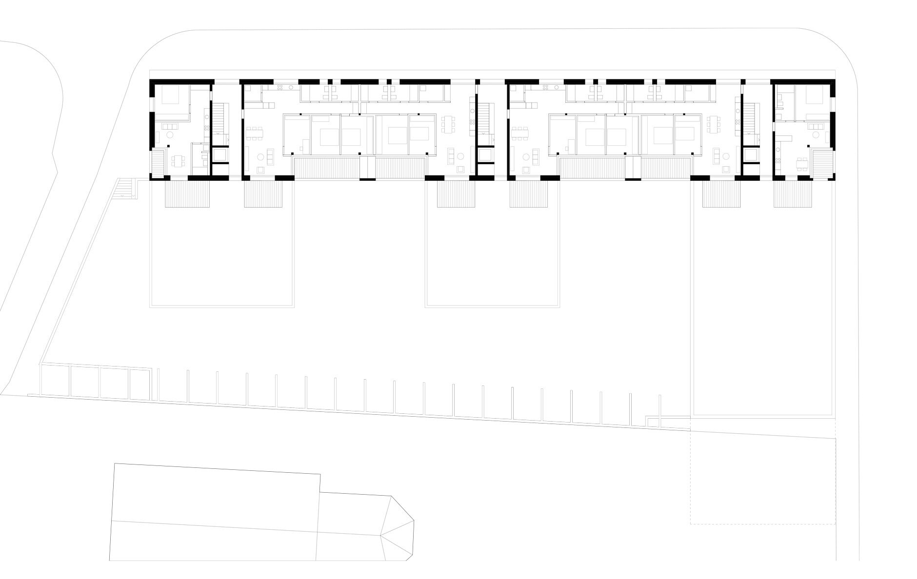
G98 HP Grundriss Erdgeschoss
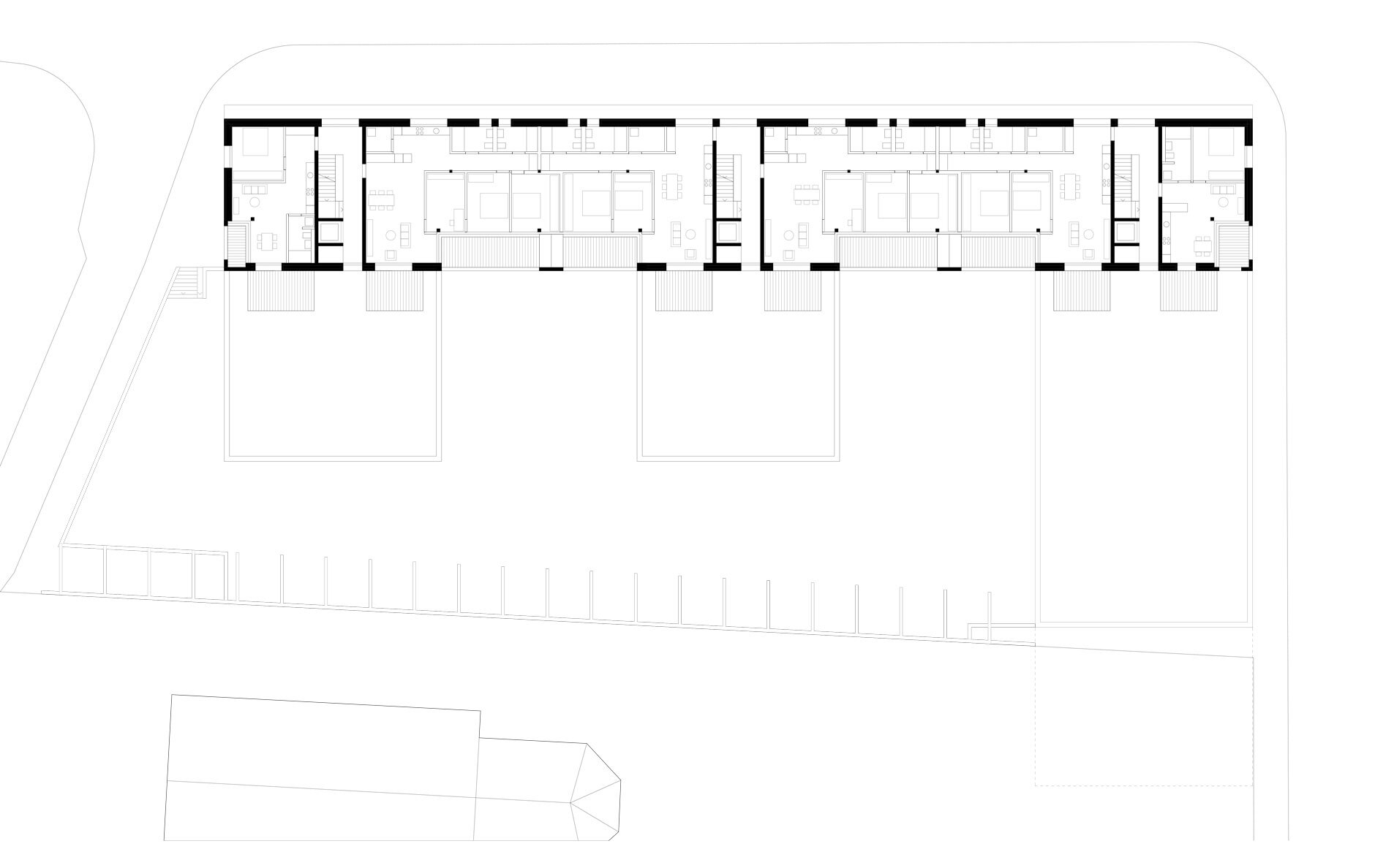
G98 HP Grundriss 1 2 Obergeschoss
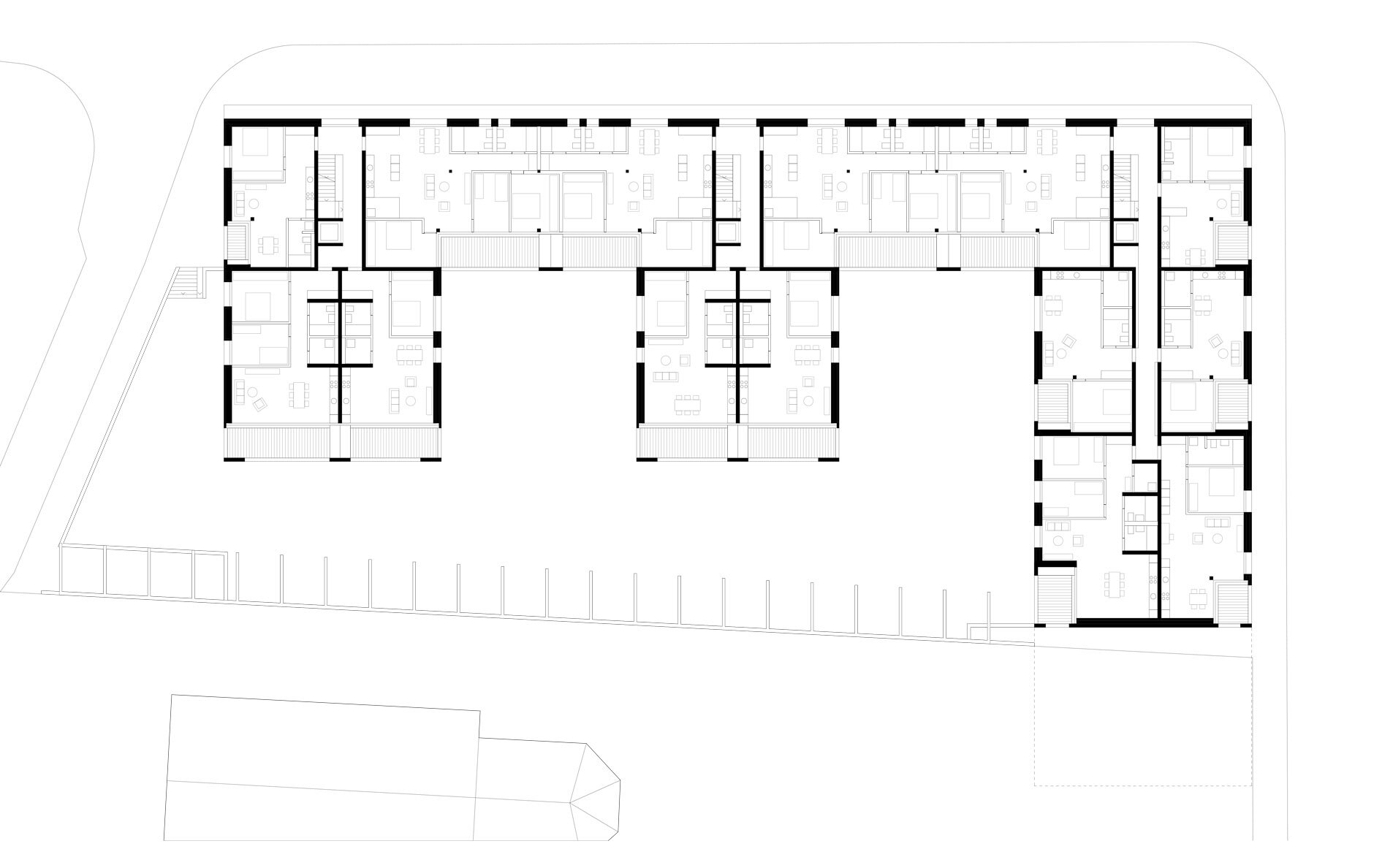
G98 HP Grundriss 3 Obergeschoss
G98 HP Grundriss 4 Obergeschoss
G98 HP Grundriss 5 Obergeschoss
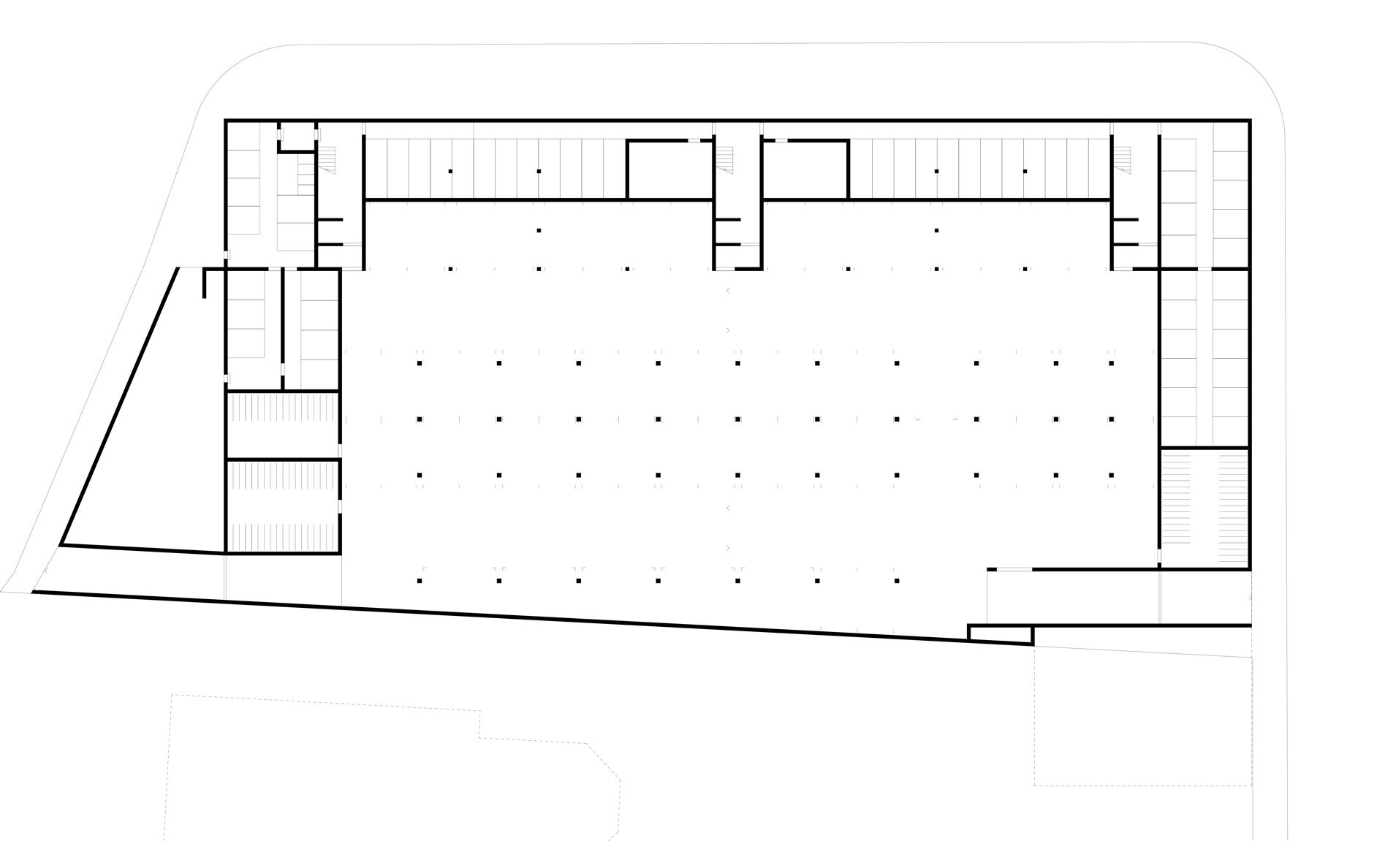
G98 HP Grundriss Untergeschoss
G98 HP Schnitt 1
G98 HP Schnitt 2
G98 HP Schnitt 3
G98 HP Schnitt 4
G98 HP Schnitt 5

Alle Pläne anzeigen

Typ

Wohnen

Ort

Olten

Auftraggeber

Privat